Existing Conditions Documentation
Before we dive into the proposed work, it is critical to get a complete understanding of the existing conditions of the project.
When documenting the existing structure(s), we will capture detailed dimensions and photographs of the two and three-dimensional characteristics of every space in order to understand the impact or limitations of the proposed design.
01
Documentation
Capture detailed dimensions of each room/space (width, depth, and height), window and door opening locations and sizes, spatial impacts of structural members or other framing components (soffits, chases, etc…).
Capture extensive photographs and/or videos of the space as necessary to fully understand the existing conditions (we may use a drone in order to capture hard-to-reach areas that are not easily seen from the ground or floor level).
Not only are we looking at the architectural features of the home, we are also considering the existing mechanical, electrical, and plumbing systems of the structure - these are the items that will have some of the largest impact to the cost of the project.
02
Drawing Development
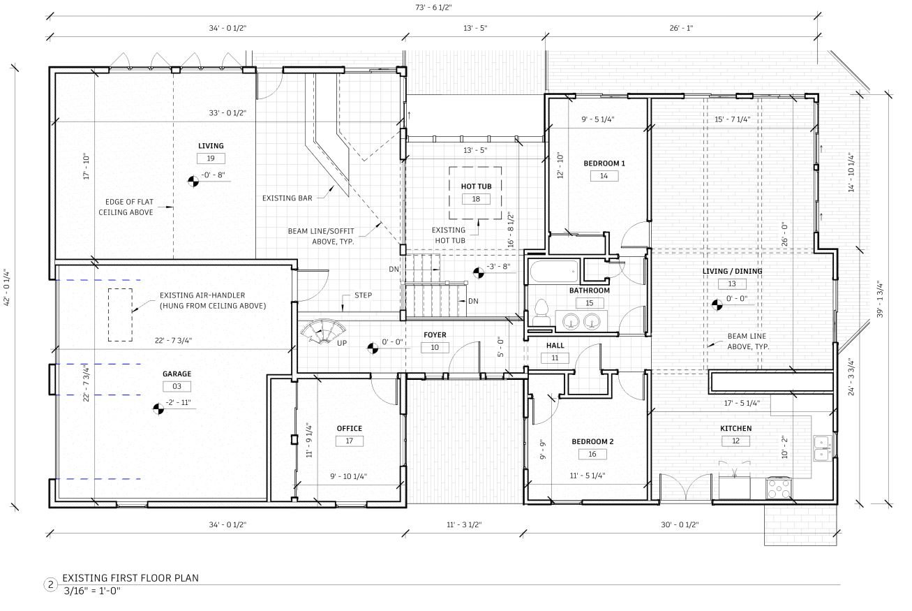
Develop a 2D set of existing floor plans and exterior elevations. Having a detailed and complete set of existing conditions drawings is critical to communicate to the builder/contractor what the current state of the structure is and what portions of the structure are being removed/reworked.
When we develop existing conditions, we are not just creating a 2D set of plans, we are developing a fully detailed 3-Dimensional model of the existing structure. This model allows us to have a complete understanding of the spatial impacts of the design decisions we make and allows us to provide visualizations to our clients in order to convey how the proposed design alters the space both internally and externally.
03
Deliverables & Additional Recommendations
Once completed, the existing conditions drawings will be provided to the client to keep. These drawings, along with the finalized drawings of the proposed project will be useful not only for the task at hand, but for any future projects that may come up.
In addition to the existing conditions drawings you receive from us, at this stage we will also recommend any additional exploratory work that may need to take place in order to get a complete understanding of the existing structure before proceeding with the design. This may involved light excavation to confirm footing locations and sizes below grade or below an existing slab, confirm existing wall stud spacing or sizes, or to confirm existing beam sizes. This work would need to be contracted out to a third party professional.
Examples of existing conditions deliverables:

