Railroad Avenue - Whole Home Renovation
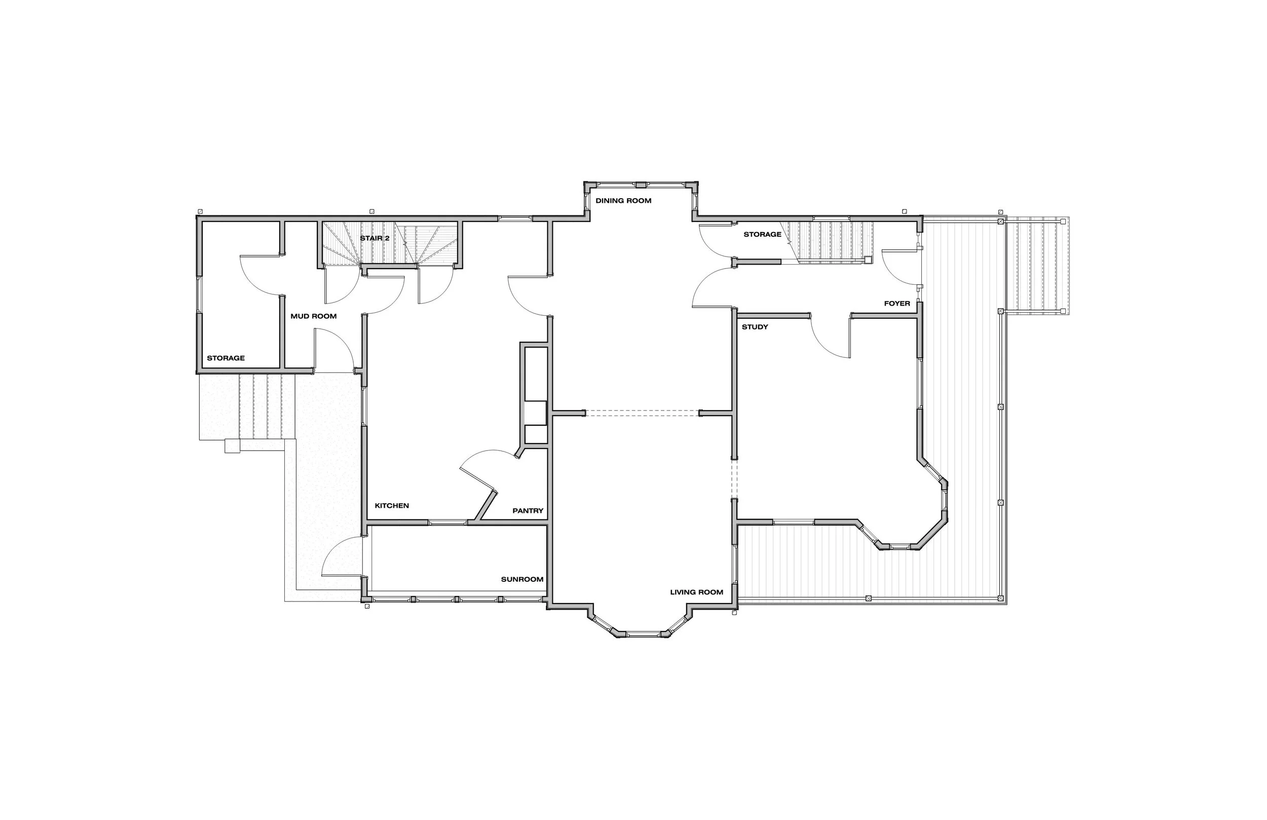
This interesting existing Victorian home was in much need of some tender love and care. The proposed revisions to the floor plan aimed to create a more fluid but also functional space as well as provide the necessary amenities for today’s living.
Contractor: North Shore Property Group, LLC
proposed floor plans
existing floor plans
existing images
construction
This project has been completed. Come back later for more project updates or follow us at our social links at the top of the site to see more.
Have any questions regarding this project or anything else you’ve seen? Click the button below to view our FAQs page to learn more.

