
Vine Street Apartments
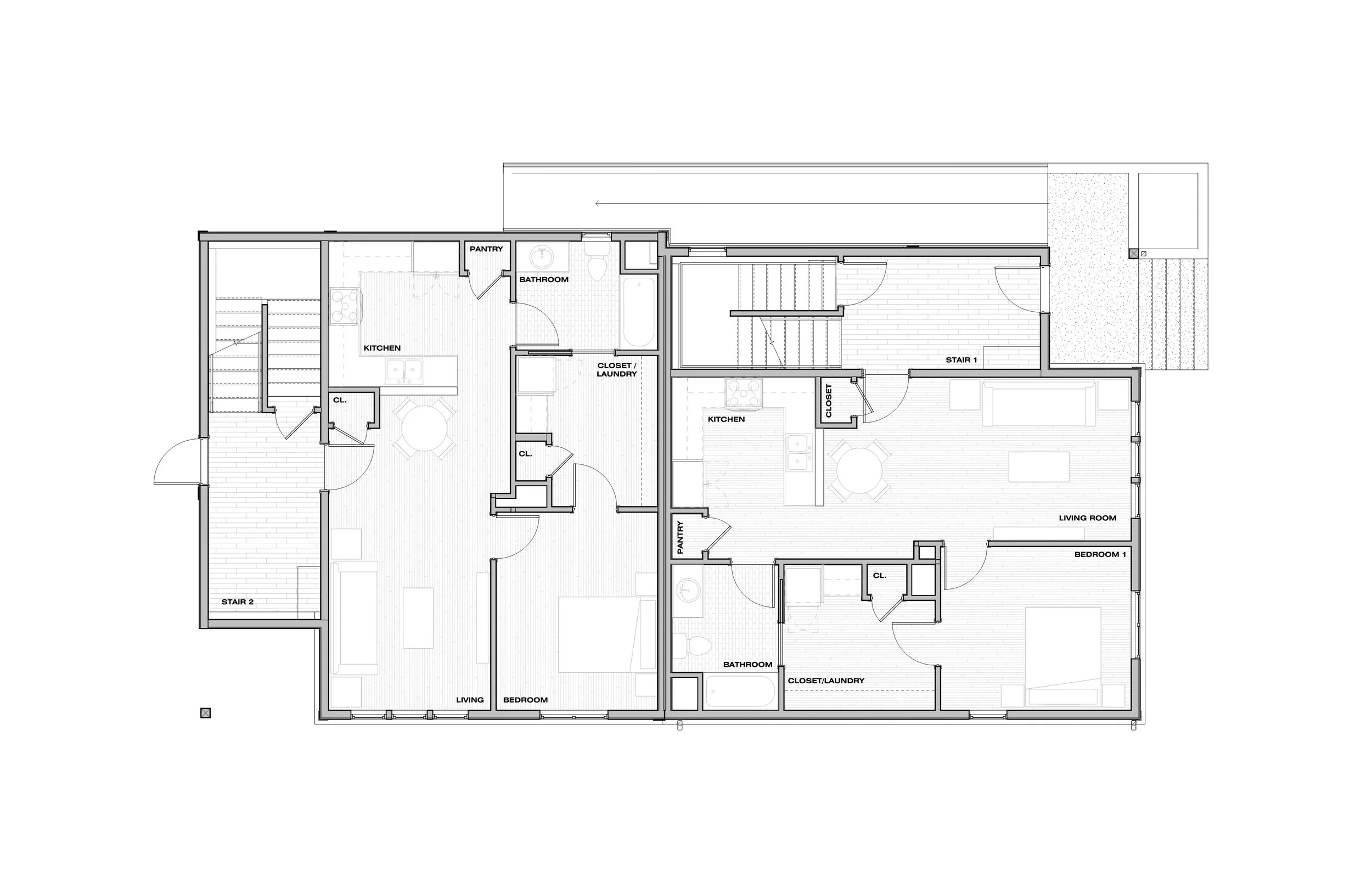
Located a few blocks from downtown Haverhill, this property was home to a beautiful Victorian style single-family home that had been converted into four separate living units. Unfortunately, the original home was lost to a fire. The goal was to design a building with 6 units that did not feel oversized for the neighborhood and fit in with character of the older style homes along the street. To accomplish this, the project consists of two sister triple decker dwellings. Each unit is a modest 1 bedroom unit with the complete suite of amenities: full kitchen, full bathroom, and in unit laundry. The two ground floor units are fully accessible while the upper four units provide slightly more living space via den & loft spaces.
Contractor: Norman Builders





This project is currently in the documentation phase.
Have any questions related to this project or anything else? Click the button below to visit our FAQs page to learn more.