
Bowdoin Ave
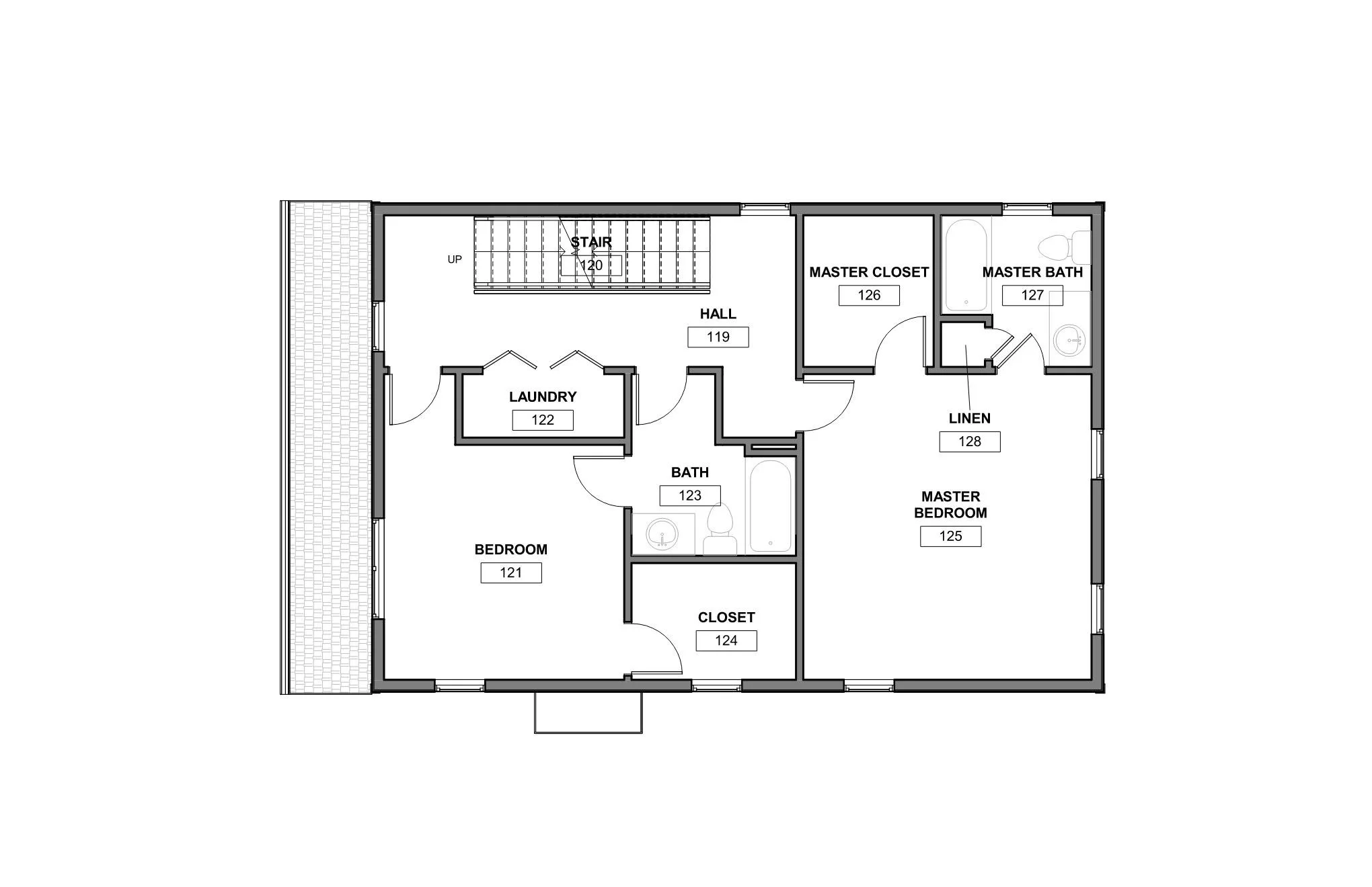
This narrow lot was home to a single story structure in need of serious love. By reusing the existing foundation the impact to the site was greatly reduced. By reusing the existing exterior wall framing, this simple and elegant new home with an efficient and functional layout that is capable of fitting the needs of any family.
Contractor: R&J Tucci Construction
Location: Waltham, MA
Year: 2021-2022





final product




construction




This project has been completed. Come back soon for more project updates or follow us at the social links at the top of the site to see more.
Have any questions regarding this project or anything else? Click the button below to head over to our FAQs page to learn more.